
关于易博eBET
公司简介
企业文化
资质荣誉
组织机构
产品中心
闸阀
Z41W法兰闸阀
Z45H 暗杆闸阀
Z41H-16C铸钢法兰闸阀
蝶阀
D373H涡轮对夹金属蝶阀
D71X不锈钢对夹式蝶阀
卫生级蝶阀
止回阀
H41H铸钢升降式法兰止回阀
H41W不锈钢升降式止回阀
水力控制阀
100X遥控浮球阀
SP45F数字锁定静态平衡阀
JM744X隔膜快开排泥阀
过滤器
GL41P不锈钢Y型过滤器
截止阀
电站焊接截止阀
J41B 氨用截止阀
减压阀
Y42X 减压阀
排气阀
SCAR复合式污水排气阀
CARX复合式排气阀(空气阀)
隔膜阀
G49J三通衬胶隔膜阀
工程案例
易博eBET首页
新闻动态
技术资讯
易博eBET官方网站
易博eBET中国官方网站
合作代理
联系我们

产品描述:
H41W不锈钢升降式止回阀原理作用:
上海止回阀的启闭件靠介质流动和力量自行开启或关闭,以防止介质倒流。易博eBET中国官方网站止回阀一般分为升降式、旋启式、蝶式及卧式等四种类型,通式升降式止回阀应安装于水平管路上,立式升降式止回阀和底阀一般安装在垂直管路上,并且介质自下而上流动,旋启式止回阀安装位置不受限制,通常安装于水平管路,但也可以安装于垂直管路或倾料管路上。注意:止回阀只允许介质向一个方向流动,应特别注意介质流动方向,应使介质正常流动方向与阀体上指示的箭头方向相一致,否则就会截断介质的正常流动。
H41W不锈钢升降式止回阀是能自动阻止流体倒流的阀门,止回阀的阀瓣在流体压力作用下开启,流体从进口侧流向出口侧;当进口侧压力低于出口侧时,阀瓣在流体压差、本身重力等因素作用下自动关闭以防止流体倒流。专用于控制腐蚀性或强腐蚀性介质,阀体内腔表面覆有可供选择的各种氟塑料,具有强度高、耐腐蚀性能好的特点,易博eBET中国官方网站适用于不同工作温度和流体管路,防止各类管路或设备上的介质逆流的单向阀。升降式止回阀只能安装在水平管道上。
H41W不锈钢升降式止回阀性能特点:
产品严格按GB12235标准设计制造,阀瓣沿着中心定位作升降运动,衬套采用耐磨性能好,摩擦系数小的特殊材料制作,动作灵活可靠,密封性能优良。产品广泛应用于石油、化工、制药、电力行业等各种工况的管路上。
H41W不锈钢升降式止回阀技术参数:
公称通径 | 公称压力 | 适用温度 | 适用介质 |
DN15-DN500 | 1.0Mpa-6.4Mpa | -30℃-425℃ | 水、气、油 |
设计与制造 | GB/T12235 | |
连接端尺寸 | 结构长度 | GB/T12221 |
法兰尺寸 | JB/T79 | |
检验与试验 | JB/T9092 | |
H41W不锈钢升降式止回阀部件材质:
阀体 | 阀盖 | 阀瓣 | 阀座 |
不锈钢 | 不锈钢 | 不锈钢 | 不锈钢 |
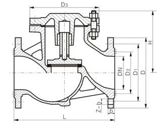
H41W不锈钢升降式止回阀外形尺寸:

公称通径 | 主要外形尺寸和连接尺寸 | ||||||
L | D | D1 | D2 | b | Z-d | H | |
15 | 130 | 95 | 65 | 45 | 14 | 4-14 | 77 |
20 | 150 | 105 | 75 | 55 | 14 | 4-14 | 77 |
25 | 160 | 115 | 85 | 65 | 14 | 4-14 | 80 |
32 | 180 | 135 | 100 | 75 | 16 | 4-18 | 85 |
40 | 200 | 145 | 110 | 85 | 16 | 4-18 | 95 |
50 | 230 | 160 | 125 | 100 | 16 | 4-18 | 105 |
65 | 290 | 180 | 145 | 120 | 18 | 4-18 | 120 |
80 | 310 | 195 | 160 | 135 | 20 | 8-18 | 130 |
100 | 350 | 215 | 180 | 155 | 20 | 8-18 | 140 |
125 | 400 | 245 | 210 | 185 | 22 | 8-18 | 155 |
150 | 480 | 280 | 240 | 210 | 24 | 8-23 | 180 |
200 | 600 | 335 | 295 | 265 | 26 | 12-23 | 215 |
250 | 730 | 405 | 355 | 320 | 30 | 12-25 | 260 |
300 | 850 | 460 | 410 | 375 | 34 | 12-25 | 315 |
手机:13918861646
电话:021-33656988
网址:http://www.5915k.com
地址:上海市奉贤区南奉公路易博eBET中国官方网站
底部二维码
手机官网